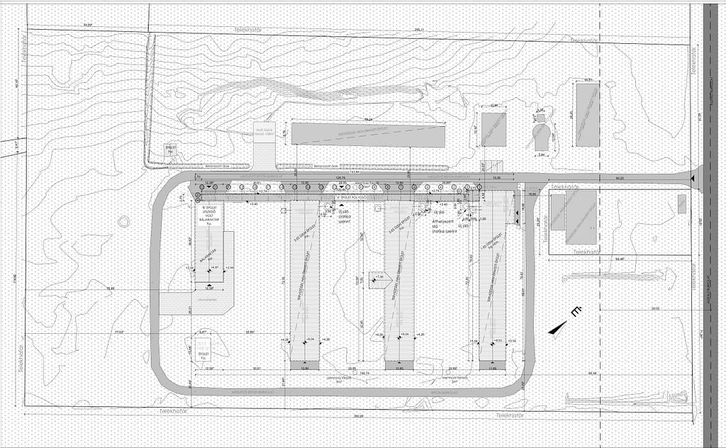
Mezőgazdasági üzem fejlesztése
Papkeszi I.
Fejér Tervező és Mérnökiroda Kft.
2021
Engedélyezési terv, kiviteli terv - felelős építész tervező
2021
Engedélyezési terv, kiviteli terv - felelős építész tervező
Tojásüzem bővítésének felmérési-, engedélyezési- és kiviteli terveinek elkészítése a technológiának megfelelően.
Tojásüzem bővítésének felmérési-, engedélyezési- és kiviteli terveinek elkészítése a technológiának megfelelően.

