Családi ház
Fejér Tervező és Mérnökiroda Kft.
2018
Kiviteli terv - építész tervező
2018
Kiviteli terv - építész tervező
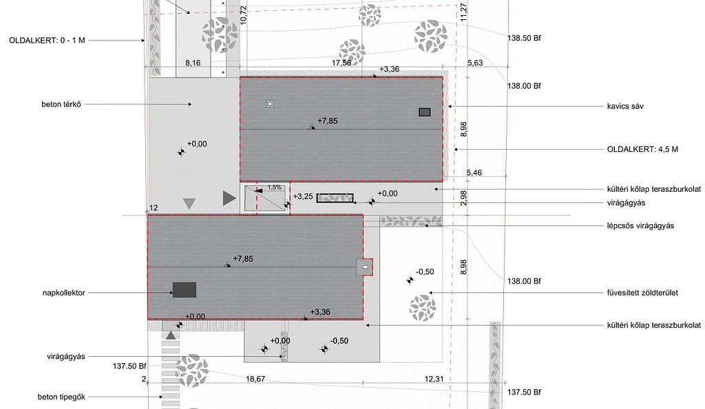
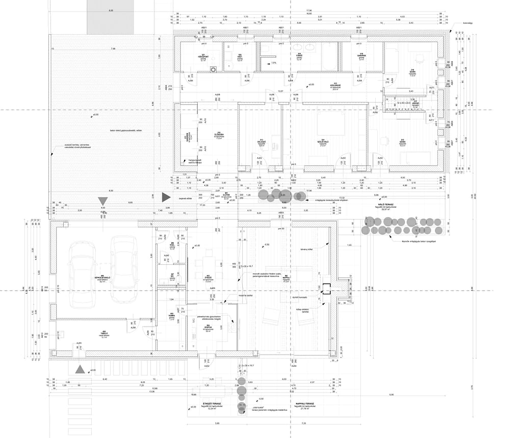
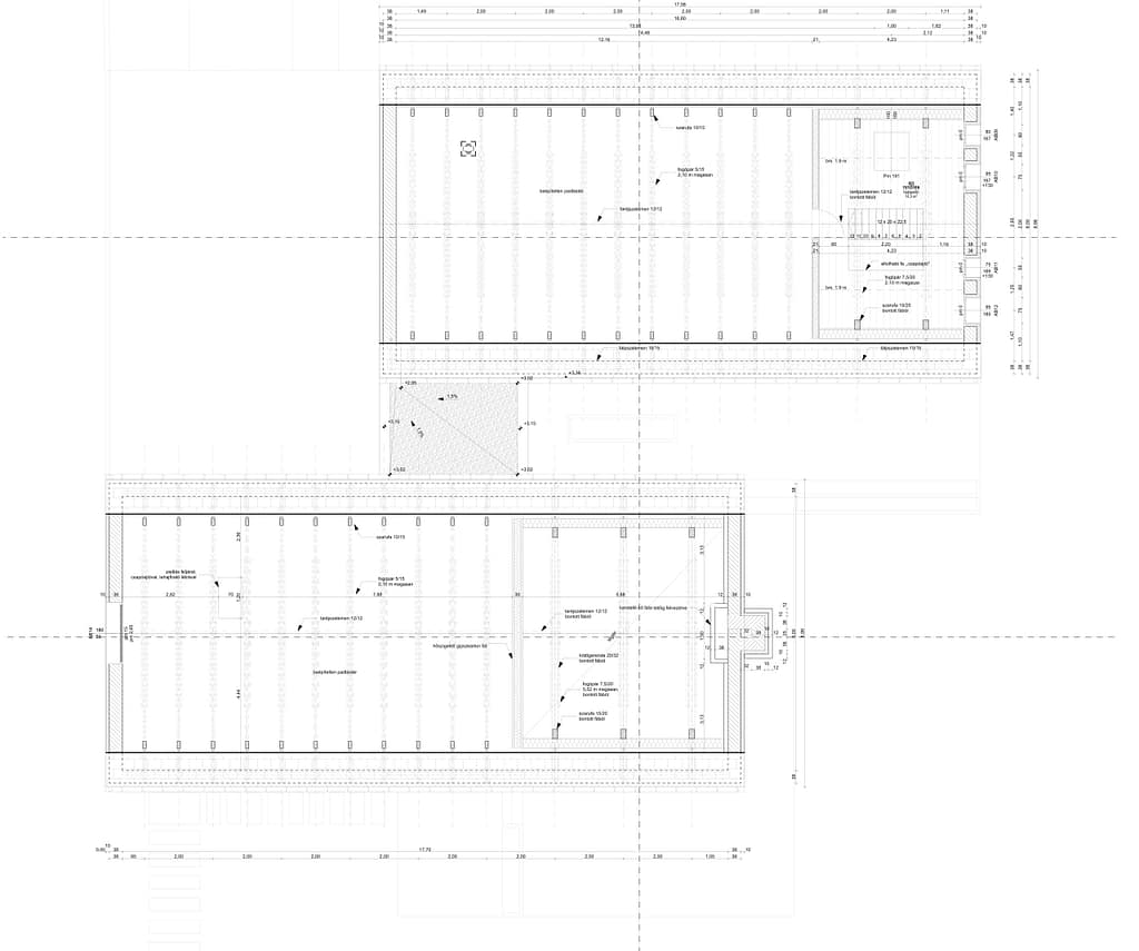
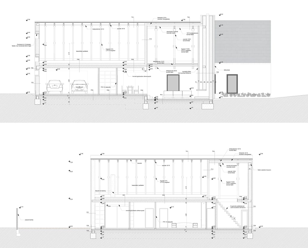
Négytagú család számára terveztem családi házat enyhén lejtős terepre, ahol a közösségi funkciók finoman elkülönülnek a hálószobáktól. Így a családi életnek is megvan a maga közös tere, de a nyugodt elvonulás is biztosított.
Négytagú család számára terveztem családi házat enyhén lejtős terepre, ahol a közösségi funkciók finoman elkülönülnek a hálószobáktól. Így a családi életnek is megvan a maga közös tere, de a nyugodt elvonulás is biztosított.





















