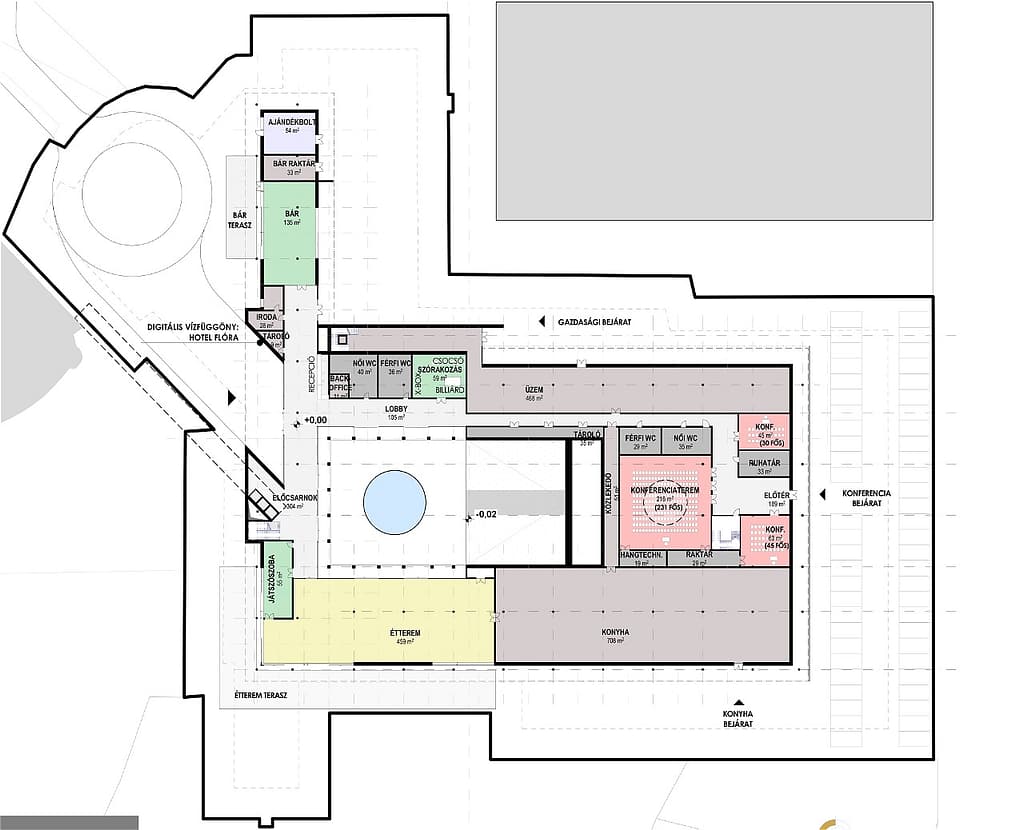
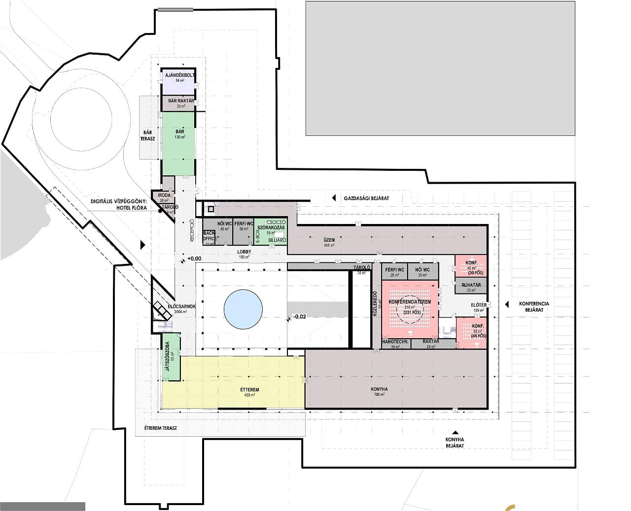
100 szobás Wellness szálloda
Fejér Tervező és Mérnökiroda Kft.
2019
Vázlatterv - felelős építész tervező
2019
Vázlatterv - felelős építész tervező
100 szobás szálloda koncepcióterve konferenciaközponttal és wellness részleggel.
100 szobás szálloda koncepcióterve konferenciaközponttal és wellness részleggel.



















